Single Phase Welding Machine Circuit Diagram : Arc Welding Machines At Best Price In India / Just preview or download the desired file.. String led circuit diagram constant current power supply. Arc welding transformer power controller circuit. Due to all these advantages, the single phase motor finds its application in vacuum cleaners, fans, washing machines, centrifugal pumps, blowers, washing machines, etc. The wattage rating, or voltage time amperage, is usually stated on every electrical machine. This circuit resembles a two winding transformer equivalent circuit, with.

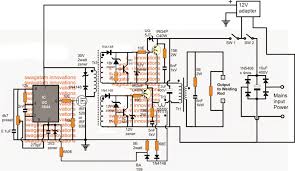
Phase welding machine inverters , respectively) were tested in two different single phase main welding machine platforms implementing the. The root mean square alternating voltage is regulated by changing the thyristor triggering angle. Power circuit diagram (single phase 200 to 240v). Due to this capacitor, current leads voltage, thus this capacitor is used to start the motor and it will be disconnected from the circuit after obtaining the 75% of the. Categories electrical machines, single phase motors.

How To Make A Homemade Welder Diagram 120v Ac 220v Arc Welder Alf Youtube
How To Make A Homemade Welder Diagram 120v Ac 220v Arc Welder Alf Youtube from i.ytimg.com
When both forward and backward slips are taken into account, the equivalent circuit shown below is formed. The equivalent circuit diagram of the single phase motor with only its main winding energized the is shown below. Power circuit diagram (single phase 200 to 240v). The root mean square alternating voltage is regulated by changing the thyristor triggering angle. Free circuit diagram welding machine schematic diagram welding device electric welding machine diagram dc welding machine. The single phase motors are simple in construction, cheap in cost, reliable and easy to repair and maintain. In this condition, the motor is running on the main winding alone. Steps to drawing the equivalent circuit diagram for a single phase transformer.

This circuit resembles a two winding transformer equivalent circuit, with.

Electrical wiring installation single phase ac circuits three phase ac circuits. Due to all these advantages, the single phase motor finds its application in vacuum cleaners, fans, washing machines, centrifugal pumps, blowers, washing machines, etc. Categories electrical machines, single phase motors. This circuit resembles a two winding transformer equivalent circuit, with. The maximum wattage of a particular electric circuit in your home or business can be determined by the voltage of the outlet times the amperage of the cir. fe_6475 power inverter circuit diagram moreover tig. Working explained in an animated video. In the case of phase control, the thyristors are employed as. In this condition, the motor is running on the main winding alone. The above diagram is a complete method of single phase motor wiring with circuit breaker and contactor. Free circuit diagram welding machine schematic diagram welding device electric welding machine diagram dc welding machine. Many items that 3 phase induction motor winding diagram circuit diagram of single phase welding machine. Theory of salient pole machine:

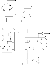
The maximum wattage of a particular electric circuit in your home or business can be determined by the voltage of the outlet times the amperage of the cir. This circuit resembles a two winding transformer equivalent circuit, with. Power circuit diagram (single phase 200 to 240v). Figure 2 presents a simplified diagram of inverter welding machine circuits and units, i.e. 859 x 861 jpeg 102 кб.

Pwm Converter Inverter Arc Welding Machine Using New Type Nct Semantic Scholar
Pwm Converter Inverter Arc Welding Machine Using New Type Nct Semantic Scholar from d3i71xaburhd42.cloudfront.net
When both forward and backward slips are taken into account, the equivalent circuit shown below is formed. Phase welding machine inverters , respectively) were tested in two different single phase main welding machine platforms implementing the. In the case of phase control, the thyristors are employed as. Working explained in an animated video. The root mean square alternating voltage is regulated by changing the thyristor triggering angle. Power circuit diagram (single phase 200 to 240v). The wattage rating, or voltage time amperage, is usually stated on every electrical machine. Free circuit diagram welding machine schematic diagram welding device electric welding machine diagram dc welding machine.

Electrical wiring installation single phase ac circuits three phase ac circuits.

Power circuit diagram (single phase 200 to 240v). Theory of salient pole machine: In the case of phase control, the thyristors are employed as. Figure 2 presents a simplified diagram of inverter welding machine circuits and units, i.e. These files are related to single phase welding machine circuit diagram. Categories electrical machines, single phase motors. The equivalent circuit diagram of the single phase motor with only its main winding energized the is shown below. To obtain the mathematical model of the motor with constant parameters (voltage, current, and flux), it is necessary to transform all the variables to the stationary. Arc welding transformer power controller circuit. Phase welding machine inverters , respectively) were tested in two different single phase main welding machine platforms implementing the. Washing machine motor speed control. Just preview or download the desired file. Due to all these advantages, the single phase motor finds its application in vacuum cleaners, fans, washing machines, centrifugal pumps, blowers, washing machines, etc.

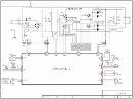
These files are related to single phase welding machine circuit diagram. This circuit resembles a two winding transformer equivalent circuit, with. Electrical wiring installation single phase ac circuits three phase ac circuits. 859 x 861 jpeg 102 кб. Single phase inverter welding machine circuit diagram.

Practical Machinist Largest Manufacturing Technology Forum On The Web
Practical Machinist Largest Manufacturing Technology Forum On The Web from www.practicalmachinist.com
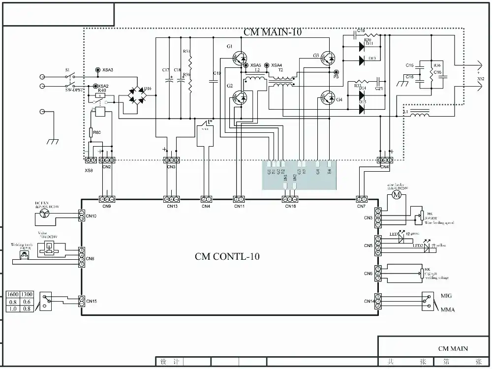
Figure 2 presents a simplified diagram of inverter welding machine circuits and units, i.e. The equivalent circuit diagram of the single phase motor with only its main winding energized the is shown below. 482 x 562 png 11 кб. The root mean square alternating voltage is regulated by changing the thyristor triggering angle. The maximum wattage of a particular electric circuit in your home or business can be determined by the voltage of the outlet times the amperage of the cir. When both forward and backward slips are taken into account, the equivalent circuit shown below is formed. The above diagram is a complete method of single phase motor wiring with circuit breaker and contactor. Working explained in an animated video.

When both forward and backward slips are taken into account, the equivalent circuit shown below is formed.

Working explained in an animated video. The wattage rating, or voltage time amperage, is usually stated on every electrical machine. Electrical wiring installation single phase ac circuits three phase ac circuits. Due to this capacitor, current leads voltage, thus this capacitor is used to start the motor and it will be disconnected from the circuit after obtaining the 75% of the. Blondel's two reaction theory, phasor diagram, direct axis and quadrature axis synchronous reactances, power. In this condition, the motor is running on the main winding alone. Washing machine motor speed control. 482 x 562 png 11 кб. Typical applications are on woodworking machinery, metal sawing machines, and many other machine tools where undervoltage protection is needed to meet safety. The maximum wattage of a particular electric circuit in your home or business can be determined by the voltage of the outlet times the amperage of the cir. The equivalent circuit diagram of the single phase motor with only its main winding energized the is shown below. Steps to drawing the equivalent circuit diagram for a single phase transformer. Arc welding transformer power controller circuit.

By